Zoeken



Land-Huis B.V.
Kanaaldijk 12
4245 TX Leerbroek

Tel: 0183-353699

Privacy verklaring
<< Terug naar overzicht

Broekseweg 76 4231VG Meerkerk

Uniek wonen in "Broek"

  • Woonoppervlakte: 272 m²
  • Perceeloppervlakte: 6785 m²
  • Vraagprijs € 1.400.000 k.k.
Verkocht

Omschrijving

UNIEK WONEN IN “BROEK”

Idyllisch gelegen in het buitengebied van Meerkerk staat deze sfeervolle 17de eeuwse met rietgedekte woonboerderij. Voeg daaraan toe de paardenstal met 4 paardenboxen, de grote carport voor 4 auto’s, het rietgedekt prieel, de rijbaan, de paddock en het achterliggende weiland omgeven door knotwilgen, dan ervaart u hoe het voelt om op uw eigen “landgoed” van bijna 6.800 m² te wonen, te leven en te werken.

Via een gietijzeren automatische toegangspoort bereikt u deze karakteristieke woonboerderij.

Deze monumentale boerderij is rijk aan originele details, waaronder prachtige gebinten/spanten, balkenplafond, paneeldeuren, een schouw met originele tegels, voormalige bedsteden, originele boerenbont en keramiek tegels én stalramen. Verder beschikt deze woonboerderij over een royale en sfeervolle woonkeuken/living (in voormalige deel) in Oudhollands blauw (Ecokeuken) met een watereiland, perfect voor de echte kookliefhebber. De prachtige vide versterkt de ruimte en het lichtinval in de woonkeuken. De woonkamer in het voorhuis biedt een warm en karakteristiek gevoel door het balkenplafond, de houtkachel en de oude schouw met tegels uit 1624. De tegelafbeeldingen in auberginerood in de schouw hebben betrekking op de Sint Elizabeths vloed uit 1421. Een woning dus met historie!

Het gehele object is met liefde en zorg afgewerkt, waarbij duurzame materialen zijn gebruikt om het karakter van de woning te behouden en tegelijk te voorzien van hedendaagse wooncomfort.

Het hart van de liefhebber van karakteristieke woningen gaat bij deze sfeervolle woonboerderij zeker harder kloppen!

De boerderij is gelegen aan de smalle, kronkelende Broekseweg, een karakteristieke weg in het buitengebied van Meerkerk, bekend om zijn prachtige boerderijen. De locatie biedt het beste van twee werelden: de rust en ruimte van het platteland, maar toch op slechts enkele minuten van de lokale voorzieningen in Meerkerk of Ameide. De grote steden zoals Utrecht, Rotterdam en Den Bosch zijn goed bereikbar via de snelwegen A27 en A2.

Droomt u van het wonen in een historische boerderij, omgeven door natuur, met de faciliteiten om uw passie voor paarden te combineren met het gemak van een moderne woning? Dan is dit de ideale plek voor ú!

Maak geheel vrijblijvend een afspraak voor een bezichtiging en laat uw woonwensen werkelijkheid worden!

Indeling:

Begane grond:

Entree voorhuis; woonkamer met authentieke schouw en houtkachel, twee voormalige bedsteden en dakraam; royale woonkeuken/living met vide, inbouwkasten, open trapopgang, twee dakramen, openslaande tuindeuren en houtkachel (HR) met ventilatoren; portaal; toiletruimte met zwevend toilet en fonteintje; badkamer met hoekdouchecabine en wastafel; slaapkamer met inbouwkast; ouderslaapkamer met 3 inbouwkasten en privé badkamer; badkamer met ligbad, inloopdouche met stort- en handdouche, dubbele wastafel met Belgisch hardsteen blad, 2e zwevend toilet en handdoekradiator; tussenlid met 2 tuindeuren/verbinding naar stal; bijkeuken met wasmachine-aansluiting, washoek en inbouwkast met c.v. ketel; paardenstal met vier boxen, waarvan 1 deelbaar. De stal is voorzien van 2 x 2 openslaande deuren, 2 loopdeuren en is gedeeltelijk bezolderd. Op de stalzolder (gedeeltelijk) bevindt zich een boiler (200 liter).

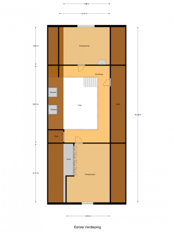
1e verdieping:

Vide met bergruimten; twee slaapkamers, waarvan één met wastafel en één met inbouwkasten.

Vloerafwerking:

Dubbel gerookte eikenvloerdelen: woonkamer, woonkeuken (gedeeltelijk), slaapkamers begane grond, vide

Originele boerenbont plavuizen: woonkeuken (gedeeltelijk)

Keramiek tegels: toilet, badkamer, portaal en tussenlid

Novilon: slaapkamer 1e verdieping

Vloerbedekking: slaapkamer 1e verdieping

Algemeen:

. December 2024 zijn de rietenkappen van de boerderij en het prieel gerenoveerd.

. De woonboerderij is voorzien van snijvoegen, een bliksemafleider en diverse buitenluiken.

. Isolatie: dakisolatie en deels dubbelglas.

. De stal is uitgerust met 12 zonnepanelen, geplaatst in 2017.

. De sfeervolle tuin beschikt over diverse terrassen, een gazon, bloemborders, hagen, diverse fruit- en  sierbomen, leilinden, een sfeervol prieel, een vijver (met kooikarpers), een buitendouche, hardhouten beschoeïng (2022) en hardhouten vlonders.

. De c.v. ketel, merk Nefit HR Excellent, en de boiler zijn van ca. 2006; er is een warmteretourleiding, zodat er direct warm water is.

. Electra: 19 groepen met 4 aardlekschakelaars en krachtstroom.

. De op maat gemaakte Eco keuken met watereiland is voorzien van een hardstenen werkblad met een gezaagde rand en beschikt over de volgende inbouwapparatuur: afzuigkap, Smeg gasfornuis (2023) met 6-pits kookplaat en combi heteluchtoven, koelkast en vaatwasmachine.

. De carport, gebouwd in 2009, is groot ca. 68 m² en voorzien van eiken staanders.

. Prieel, gebouwd in 2011, is groot ca.42 m² en voorzien van een rieten kap, electra, hardhouten vlonders en tuintegels.

. De rijbaan, groot 60 m : 27 m, met Agterberg paardensportbodem is gedraineerd en voorzien van 5 lichtmasten, drinkbakken en een automatische beregeningsinstallatie.

. De paddock is voorzien van drinkbakken.

. Gezien het bouwjaar van de onroerende zaak, zal in de koopovereenkomst de zogenoemde “ouderdomsclausule” worden opgenomen.

KENMERKEN

Perceeloppervlak: 6.785 m²

Woonoppervlak: ca. 272 m²

Overige inpandige ruimte: ca. 105 m²

Externe berging/paardenboxen buiten: ca. 7 m²

Inhoud: ca. 1.559 m³

Bouwjaar: oudste deel ca. 1624

Interesseformulier