Zoeken



Land-Huis B.V.
Kanaaldijk 12
4245 TX Leerbroek

Tel: 0183-353699

Privacy verklaring
<< Terug naar overzicht

Rembrandthof 455 3372XW Hardinxveld-Giessendam

Comfortabel wonen met alle gemakken op de begane grond

  • Woonoppervlakte: 120 m²
  • Perceeloppervlakte: 164 m²
  • Vraagprijs € 450.000 k.k.
Verkocht

Omschrijving

Droomt u van een keurige levensloopbestendige woning met berging waar u zorgeloos kunt wonen, nu en in de toekomst? Dan is dit uw kans! Deze uitstekend onderhouden en recent opgefriste woning, gebouwd in 2002, biedt alles wat u zoekt – én meer. Gelegen op een rustige locatie aan de Rembrandthof, vindt u hier rust, ruimte en comfort, gecombineerd met een praktische indeling.

De woning beschikt over drie slaapkamers, een ruime woonkamer, een moderne keuken (2024) en een nette badkamer. De externe berging en de onderhoudsvriendelijke achtertuin op het zonnige zuiden maken het plaatje compleet. Daarnaast heeft u parkeergelegenheid op eigen terrein – direct voor de deur.

Indeling

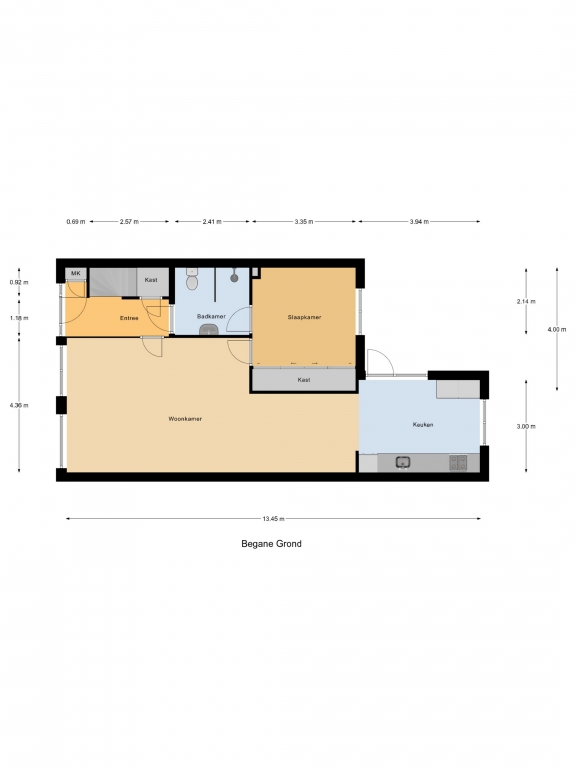
Begane grond
U betreedt de woning via de hal, waar zich de meterkast, een trapkast en de trapopgang bevinden. Aan het einde van de hal vindt u de badkamer én toegang tot de woonkamer.

De woonkamer is ruim opgezet en gemakkelijk in te richten met een gezellige zithoek en een eetgedeelte. Vanuit de voorzijde kijkt u fraai uit over de rustige straat. Aan de achterzijde loopt u door naar de slaapkamer met schuifdeurkastenwand op de begane grond, die direct grenst aan de woonkamer én badkamer – ideaal voor levensloopbestendig wonen.

De moderne keuken (2024) is ruim en licht, met een praktische parallelopstelling. Hier vindt u onder andere een inductiekookplaat, afzuigkap, combimagnetron, koel/vriescombinatie, vaatwasser en apothekerskast. Via de keuken heeft u direct toegang tot de achtertuin.

De badkamer is bereikbaar vanuit zowel de hal als de slaapkamer, en is uitgerust met een inloopdouche, een wastafel in meubel en een staand toilet.

Eerste verdieping
Op de eerste verdieping bevinden zich twee ruime slaapkamers met dakraam en een overloop met aansluitingen voor de wasapparatuur, de CV-installatie en toegang tot de bergzolder via een vlizotrap. Desgewenst kan hier een derde slaapkamer worden gerealiseerd.

Bergzolder
De bergzolder beslaat de volle breedte van de woning en heeft een nokhoogte van ca. 2,10 meter – ideaal voor extra opslagruimte.

Buitenruimte
De achtertuin ligt op het zonnige zuiden en is onderhoudsvriendelijk aangelegd. Voor de woning bevindt zich eveneens een onderhoudsvriendelijke tuin met grind, bloemborders en een vlaggemast. Verder heeft u een eigen parkeerplaats voor de woning en er is extra parkeergelegenheid in de straat. Aan de zijkant van het woningblok heeft u toegang tot uw eigen berging van ca. 8 m² – perfect voor fietsen en tuingereedschap.

Locatie
De woning is gelegen in een rustige, kindvriendelijke woonwijk met voorzieningen op steenworp afstand.

Verder is er een veerverbinding naar o.a. de vestingstad Gorinchem, waar u heerlijk kunt shoppen of een terrasje kunt pikken. De plaatsen Hertogenbosch, Utrecht, Breda of Rotterdam zijn gemakkelijk bereikbaar via de A15 of A 27 of per trein vanaf station Hardinxveld.

Algemeen:

  • Levensloopbestendige woning met slaapkamer en badkamer op de begane grond
  • Bouwjaar 2002 | Perceel 164 m² | Woonoppervlak ca. 120 | Externe bergruimte 8 | Inhoud ca. 450 m³
  • Moderne keuken (2024) en nette badkamer
  • 3 slaapkamers met mogelijkheid voor 4
  • Zonwering: electrische screen
  • Intergas c.v. ketel 2022
  • Energielabel A; volledig geïsoleerd
  • Onderhoudsvriendelijke achtertuin op het zuiden
  • Parkeren op eigen terrein
  • Eigen berging van ca. 8 m²
  • Rustige ligging nabij voorzieningen

Nieuwsgierig geworden?


Maak snel een afspraak voor een bezichtiging en ervaar zelf het comfort en de rust van deze fijne woning!

KENMERKEN:

Perceeloppervlak: 164  m²

Woonoppervlak: ca. 120 m²

Inhoud: ca. 450 m³

Externe bergruimte: ca. 8 m²

Bouwjaar: 2002


Interesseformulier