Zoeken



Land-Huis B.V.
Kanaaldijk 12
4245 TX Leerbroek

Tel: 0183-353699

Privacy verklaring
<< Terug naar overzicht

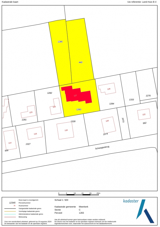
Scheepjesbrug 127 4231ZZ Meerkerk

Pareltje op Parc Merwede!

  • Woonoppervlakte: 150 m²
  • Perceeloppervlakte: 1405 m²
  • Vraagprijs € 489.000 k.k.
Verkocht

Omschrijving

Pareltje op Parc Merwede!

Recent gerenoveerd riant vrijstaand landhuis met loggia, tuinhuis, kas en houtberging, gelegen aan de buitenrand van het park “Merwede” op een perceel van maar liefst ruim 1.400 m² én ca. 150 m² woonoppervlak. Direct achter de woning ligt een fraai aangelegde riante grote tuin met diverse terrassen en een vijver. Aan de achterzijde heeft u weids uitzicht over de landerijen.

Deze royale woning is recent op de begane grond gerenoveerd en aangepast aan modern wooncomfort. De woning is luxe en op de begane grond tot in detail afgewerkt met verrassende effecten. Zelfs de grote tuin (rondom) en de terrassen zijn opnieuw aangelegd, waardoor het een prachtig geheel is geworden.

U kunt de gehele dag genieten van de zon want er is altijd wel een zonnig plekje in de tuin te vinden rondom de woning.

Doordat het object alle leefcomfort op de begane grond biedt, is dit object ook zeer geschikt voor senioren.

Er zijn voldoende parkeermogelijkheden op eigen terrein. 

Door de ligging aan het Merwedekanaal met een haventje en de vele waterwegen rondom Meerkerk is het park voor watersporters een interessante locatie. Parc Merwede is ca. 10 ha groot en is zeer centraal gelegen net buiten de Randstad, binnen de Stedendriehoek Utrecht-Rotterdam-Den Bosch. De A27 ligt op circa 5 autominuten afstand.

Bent u op zoek naar een royale vrijstaande landelijk gelegen recreatiewoning mét grote tuin dan is dit dé woning die zeker aan uw wensen voldoet.

Maak geheel vrijblijvend een afspraak om deze instapklare woning te bezichtiging!

Indeling:

Begane grond:

hal/entree; meterkast; toiletruimte met zwevend toilet, wastafelmeubel en wasmachine-aansluiting; royale woonkamer met houtkachel, tuindeuren en trapopgang; inloopkast/berging; open luxe keuken met spoeleiland en tuindeur; ruime slaapkamer met 2e trapopgang, airco, openslaande tuindeuren, nis met wasmachine-aansluiting en toegang naar badkamer; luxe badkamer (2024) met ligbad, douchecabine, wastafelmeubel en zwevend toilet;

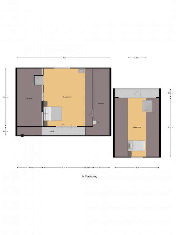
1e verdieping (trapopgang in woonkamer):

Trapopgang met berging; ruime slaapkamer met berging, wastafel, c.v. ketelruimte en toegang naar loggia.

1e verdieping (trapopgang in slaapkamer):

Slaapkamer/open ruimte met “balkon”deur.

Vloerafwerking:

. Laminaat: gehele woning m.u.v. slaapkamer beneden.

. Pvc: slaapkamer

Algemeen:

. De woning is vanaf 2021 grondig gerenoveerd: muurisolatie aangebracht, dakbedekking “balkon” vernieuwd, meterkast vernieuwd, badkamer vernieuwd, trap in slaapkamer vernieuwd, draagbalken en plafond woonkamer vernieuwd, dakgootplaten vernieuwd, tuin rondom opnieuw aangelegd, kas in tuin vernieuwd en schilderwerk.

. De luxe keuken met een spoeleiland in lichte kleurstelling is voorzien van Belgisch hardstenen bladen en beschikt over de volgende inbouwapparatuur: afzuigkap (2024), 5-pits gaskookplaat (2024), apothekerskast, combimagnetron, koelkast (2022), vriezer (2022) en vaatwasmachine (2020).

. De beheerskosten/parkkosten zijn ca. € 1.498,-- per jaar.

. c.v. ketel: merk Intergas, bouwjaar ca. 2017.

. 12 zonnepanelen (ter overname) geplaatst in april 2025.

. Dak- en muurisolatie; practisch geheel voorzien van dubbelglas.

. Vloerverwarming (electrisch) in badkamer en slaapkamer.

. In de woonkamer is een aansluiting voor een c.v. houtkachel aanwezig, zodat er eventueel warmtapwater geleverd kan worden als deze aangesloten wordt.

. Het 8-hoekig tuinhuis is groot ca. 6 m².

. De kas is groot ca. 17 m² (ca. 3 : 5,5 m).

. De woning is bereikbaar via een smeedijzeren toegangspoort.

. De fraai aangelegde grote tuin beschikt naast een groot gazon ook over terrassen, een vijver, bloemborders, diverse hagen en sierbomen.

. Het grote terras direct achter de woning is deels voorzien van pvc vlonderplanken en deels van sierbestrating.

KENMERKEN:

Bouwjaar:  1978

Perceeloppervlakte: 1.405 m²

Woonoppervlakte:  ca. 150 m²

Externe bergruimte: ca. 23 m²

Gebouwgebonden buitenruimte: ca. 8 m²

Inhoud: ca. 470 m³

Interesseformulier